ホーム ≫ 物件一覧 ≫
物件一覧
土地
建物
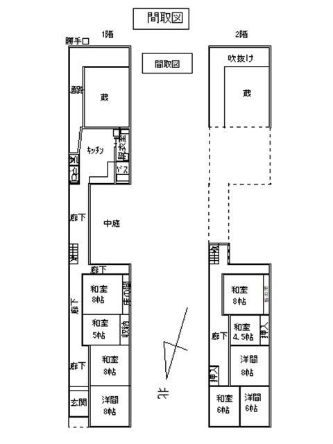
射水市西新湊売家
| 場所 | 射水市西新湊14-12 |
|---|---|
| 価格 | 450万円 |
| 間取り | 8DK |
| 土地面積 | 156.15㎡(47.23坪) |
| 建物面積 | 185.77㎡(56.19坪) |
| 築月日 | 昭和39年4月 |
| 交通 | 万葉線 第一イン新湊クロスベイ前駅 徒歩1分 |
| 土地権利 | 所有権 |
| 建物構造 | 木造2階建 |
| 都市計画 | 市街化区域 |
| 用途地域 | 一種中高層 |
| 建ぺい率 | 60% |
| 容積率 | 200% |
| 接道 | 10.0m公道 接面20.m 南8.0m公道接面8.0m 二方道路 |
| 地目 | 宅地 |
| 建物面積 | 185.77㎡(56.19坪) |
| 状況 | 空き家 |
| 引渡可能時期 | 相談 |
| 取引態様 | 選任媒介 |
| 周辺情報 | 新湊小学校765m、新湊中学校 1,504m、アルビス姫野店 1,671m |
| コメント | 万葉線第一イン新湊クロスベイ駅まで徒歩1分です。 射水市新湊地区センターもすぐ近くにあります。 |
射水市本町3丁目売家
| 場所 | 射水市本町3丁目7-11 |
|---|---|
| 価格 | 90万円 |
| 土地面積 | 187.43㎡(56.69坪) |
| 間取り | 9DK |
| 土地面積 | 187.43㎡(56.69坪) |
| 建物面積 | 237.82㎡(71.94坪) |
| 建物面積 | 237.82㎡(71.94坪) |
| 築年月 | 昭和26年4月 |
| 交通 | 万葉線 新町口駅 徒歩8分 |
| 土地権利 | 所有権 |
| 建物構造 | 木造2階建 |
| 都市計画 | 市街化区域 |
| 用途地域 | 近隣商業 |
| 建ぺい率 | 80% |
| 容積率 | 200% |
| 接道状況 | 北5.8m公道 接面5.4m |
| 地目 | 宅地 |
| 設備 | トイレ 2ヶ所 上水道 下水道 プロパンガス 電気 庭 |
| 現況 | 空き家 |
| 引渡可能時期 | 相談 |
| 取引態様 | 選任媒介 |
| 周辺情報 | 新湊小学校 878m、 新湊中学校 1,189m、アルビス姫野店 1,656m |
| コメント | 3月26日価格下げました。 今話題の内川すぐそばに立地しています。 また前面道路に融雪装置があります。 住宅内荷物等処分いたしました。 |
高岡市下牧野売り家
| 場所 | 高岡市下牧野埋田6-2 |
|---|---|
| 価格 | 1450万円 |
| 間取り | 9DK |
| 土地面積 | 408.61㎡(123.60坪) |
| 建物面積 | 209.34㎡(63.32坪) |
| 築年月 | 昭和50年8月 |
| 交通 | 万葉線 第一イン新湊クロスベイ前 徒歩9分 |
| 土地権利 | 所有権 |
| 建物構造 | 木造2階建 |
| 都市計画 | 市街化区域 |
| 用途地域 | 1種中高層 |
| 建ぺい率 | 60% |
| 容積率 | 200% |
| 接道状況 | 東5.5m公道 接面18.1m |
| 地目 | 宅地 |
| 設備 | トイレ 2ヶ所 上水道 下水道 電気 庭 |
| 現況 | 空き家 |
| 引渡可能時期 | 相談 |
| 取引態様 | 選任媒介 |
| 周辺情報 | 牧野小学校 656m、 牧野中学校 956m、グリーンモール中曽根1312m |
| コメント | 閑静な住宅地です。 建物面積が63坪あり大変ゆったりとした間取となっています。 土地区分宅地330.61㎡(100坪)雑種地78㎡(23.59坪) |
賃貸
高岡市清水町地内賃貸住宅です
高岡市清水町住宅賃貸
| 住所 | 高岡市清水町2丁目5-18 |
|---|---|
| 賃料 | 5万円 / 月 |
| 敷金 | 2ケ月 |
| 礼金 | なし |
| 使用部分面積 | 122.03㎡(36.91坪) |
| 築月日 | 昭和40年8月 |
| 交通 | あいの風とやま鉄道 小杉駅徒歩15分 |
| 接道状況 | 北東6.0m 接面6.1m |
| 用途地域 | 一種住居 |
| 賃貸保証 | 加入要 保証会社 日本賃貸保証株式会社(JID)初回保証料 月額賃料50% 利用料 月額賃料1% 集送金手数料330円 |
| 備考 | 1階トイレ2025年1月15日改修工事済 |
| 周辺情報 | 博労小学校まで402m 南星中学校まで836m バロー高岡木津店 592m |
| コメント | 7月26日賃料価格 月50,000円に下げました。 1,2階共に洗面所、トイレがあり大変使い勝手の良い住宅です。また純和風住宅で大変落ち着く住宅でもあります。 前面道路に融雪装置が設置されています。 |



































